We provide professional engineering layout services that help turn ideas into well-planned,
workable projects. Our layouts are clear, accurate, and designed to make construction and
implementation easier. With the help of modern software and skilled experts, we ensure every
detail is planned to save time, reduce errors, and deliver quality results.
About Engineering Layout & Planning
We specialize in preparing accurate and detailed engineering layouts that form the foundation
for successful projects. Our designs are clear, precise, and created to meet industry
standards while ensuring smooth execution on site.
We Can Help You With:
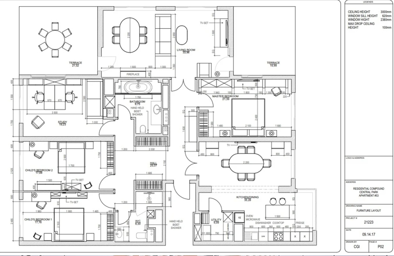
Site layout and planning
Structural and architectural layouts
Utility and service line mapping
Detailed construction drawings
With years of experience in engineering design, we provide layouts that are both practical
and cost-effective. Using modern tools and expert planning, we help ensure every project
runs smoothly from concept to completion.